Share with a friend

Please check you have entered all details correctly:

Options

Unit 1 Portland Business Park, 125 Tempo Road Enniskillen, BT74 4RH

£1,000 / month

Key Information

Address Unit 1 Portland Business Park, 125 Tempo Road Enniskillen, BT74 4RH
Rent Last listed at Price £1,000 / month
Deposit £1,000
Style Commercial Property
Status Let Agreed
   

Additional Information

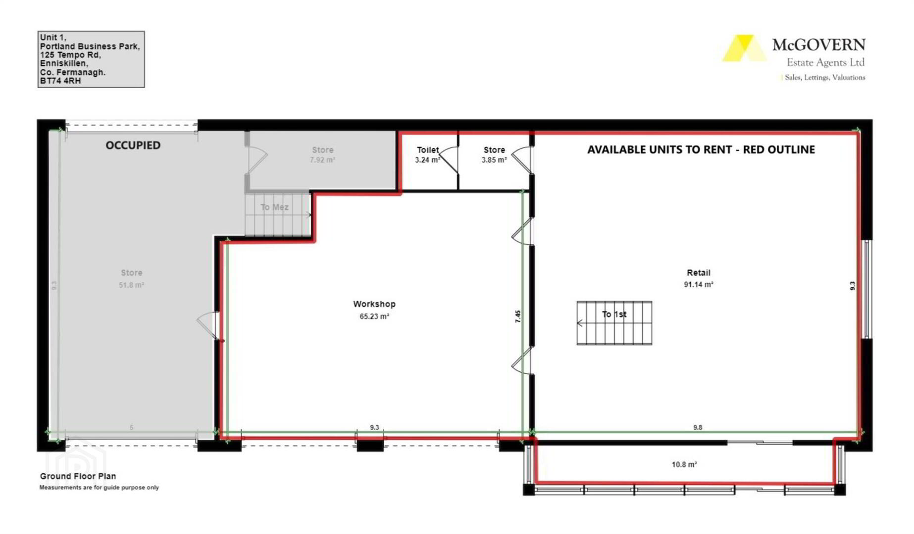
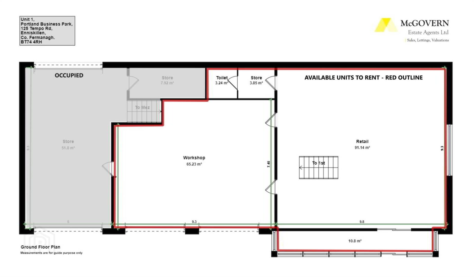
Prime Commercial Unit Available for Lease

Take advantage of an outstanding opportunity to kickstart your own venture in this prime location. The commercial unit can be leased as a whole or divided into individual units, offering flexibility to suit your business needs.


The available accommodation includes a retail area currently used for showcasing bicycles, alongside an adjacent unit presently utilised for repairs and maintenance. Together, these units offer a potential opportunity to be repurposed into shopfront spaces, providing additional flexibility to suit a range of business needs.

Don`t miss out on the chance to secure this exceptional commercial space that caters to diverse business possibilities. Contact us now to discuss leasing options and turn your business vision into reality.


Key Features:
• Prime location
• Option to lease as a whole or individual units
• Ample parking.

Deposit required.

Amenities shared on the first floor.


Notice
All photographs are provided for guidance only.