Share with a friend

Please check you have entered all details correctly:

Options

Mount Prospect Road, Derrylin, Enniskillen, BT92 9LS

Price On Application

Key Information

Address Mount Prospect Road, Derrylin, Enniskillen, BT92 9LS
Price Last listed at Price On Application
Land type Building Plot
Status Sale Agreed

Additional Information

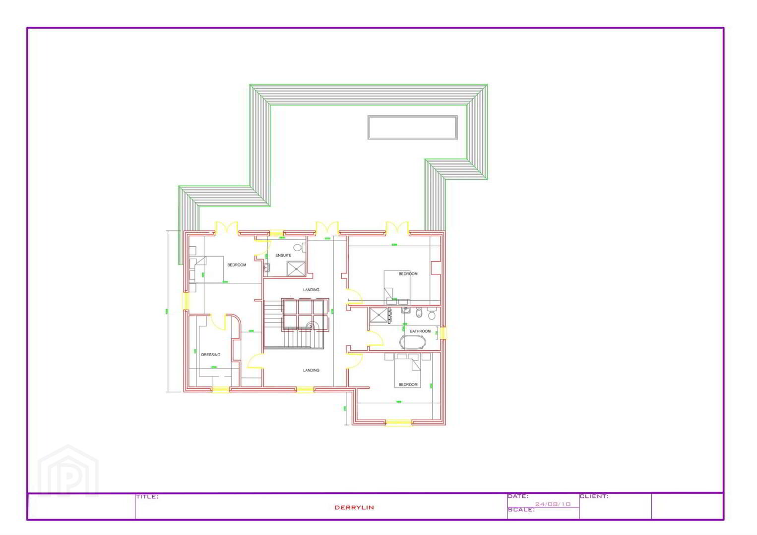
Prime 2.5 Acre Site for a Spacious Family Home
Explore this opportunity to own circa 2.5 acres site, complete with approved plans and foundations in place for a stunning two-storey detached home featuring five or more spacious bedrooms. With the ground floor slabs already laid, you can begin construction without delay.
Set in a peaceful and tranquil location, this site offers a serene environment ideal for family living. Conveniently located approximately 15.5 miles from Enniskillen, 2.5 miles from Derrylin, and 2.6 miles from Teemore, you can enjoy the best of both worlds seclusion and accessibility.
This property is perfect for those looking to create their dream home in a beautiful setting.


Notice
Please note we have not tested any apparatus, fixtures, fittings, or services. Interested parties must undertake their own investigation into the working order of these items. All measurements are approximate and photographs provided for guidance only.