Share with a friend

Please check you have entered all details correctly:

Options

Makenny Road Enniskillen, BT94 2GJ

£90,000

Key Information

Address Makenny Road Enniskillen, BT94 2GJ
Price Last listed at Offers over £90,000
Land type Building Plot
Status Sale Agreed

Summary

  • Residential Site Set on 2 Acres Offering Panoramic Countryside Views
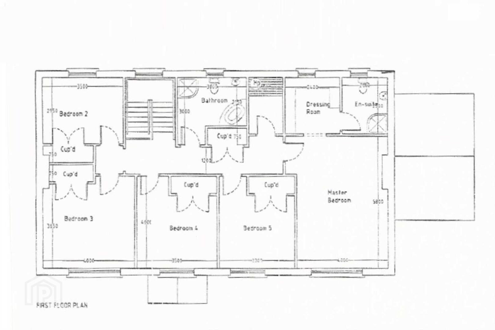
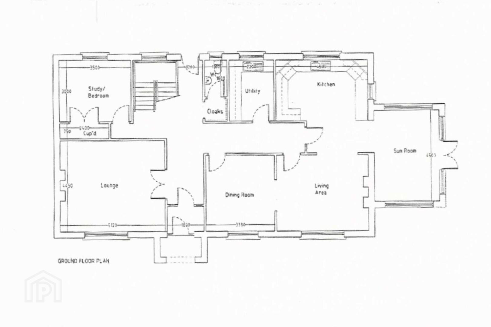
  • 5 Bedrooms & Detached Double Garage
  • Full Planning Permission Granted for Dwelling and Detached Garage
  • Foundations in Place for Dwelling
  • All Services Adjacent to Driveway
  • Full Detailed Drawings, Planning Permission, and Site Map Available
  • Private Laneway
  • CLUD in place

Additional Information

McGovern Estate Agents Ltd is delighted to bring to the market this beautiful 2 Acre site offering panoramic countryside views set in an idyllic location.

CLUD in place with Full planning permission & foundations installed for an attractive two Storey detached five bedrooms residence with a detached double domestic garage.


This panoramic site with a private laneway, has the added advantage of being situated on a superbly located elevated site, approximately 1 mile from Ballinamallard village, 2 miles from Irvinestown and 7.5 miles from the South West Acute Hospital.






what3words /// guideline.intrigues.meal

Notice
Please note we have not tested any apparatus, fixtures, fittings, or services. Interested parties must undertake their own investigation into the working order of these items. All measurements are approximate and photographs provided for guidance only.