Cookie Policy: This site uses cookies to store information on your computer. Read more
Land & Sites For Sale in Enniskillen Area
Showing properties 1 to 12 of 19
Sort by
-
Lawnakilla House, Irvinestown Road Enniskillen, BT74 6GS
- Development Opportunity (with no PP)
No Planning Permission
Lawnakilla House is one of the most distinctive opportunities to reach the Enniskillen market in recent years. Sitting on roughly 8.6 acres, including around 2.6 acres within the town`s residential zoning, it offers a rare blend of heritage, scale an...Offers over £800,000
More Details -
50 Forthill Street Enniskillen, BT74 6AJ
- Land
End Terrace Property with Full Planning Permission Forthill Street, Enniskillen This end terrace property presents a fantastic opportunity for investors and developers alike. Ideally situated on Forthill Street, just beside Dunnes Stores and withi...Guide price £95,000
More Details -
24 Drumboory Road, Springfield, Enniskillen, BT74 5DX
- Agricultural Land
Located just 10 minutes from Enniskillen, this compact rural holding extends to approximately 8 acres of good grazing ground. The property includes a solid 3-bedroom home, a range of outbuildings, and useful farm infrastructure. The house features...£305,000
More Details -
Site At, Faugher Road Enniskillen, BT74 8FB
- Building Plot
Elevated Site with Outline Planning Permission Ref: LA10/2025/0317/O Opportunity to acquire a private, elevated residential site with outline planning permission, enjoying panoramic countryside views and a private driveway leading directly to the ...£65,000
More Details -
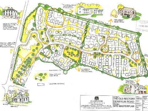
The Old Rectory, Derrylin Road Enniskillen, BT74 5AJ
- Residential Land
Prime 18-Acre Development Site Full Planning for 120 Homes A rare chance to secure a circa 18-acre development site with full planning permission for 120 mixed-type homes on the Derrylin Road, just 2 miles from Enniskillen town centre. Extensi...Price On Application
More Details -
63 Moybrone Road, Letterbreen, Enniskillen, BT74 9EP
- Land
This 4 acre site offers a unique opportunity to create a spacious home with full planning permission and foundations in place. The site is set in a peaceful location just 6 miles from Enniskillen, with foundations ready for a beautiful two-story,...Price £85,000
More Details -
Feddan Road, Garvery, Enniskillen, BT74 4JQ
- Building Plot
Full Planning Permission for 3,000 sq.ft 2 story farm house with double garage set on 0.7 acre site. Prime convenient location on Feddan road just off the main Tempo rd, less than 3 miles to Enniskillen. Please contact our office for further in...£75,000
More Details -
Site 2 Derrygonnelly Road, Derryvary Beg, Enniskillen, BT93 6JE
- Residential Land
Site for sale with full planning permission for a one and a half storey, four bedroom dwelling. 2220 square ft Garage is fully built. Foundations, services, sewerage, electric and water all in place. Boundaries, fences and hedges all in p...Price On Application
More Details -
Site 1 Derrygonnelly Road, Derryvary Beg, Enniskillen, BT93 6JE
- Residential Land
Site for sale with full planning permission for two storey, four bedroom dwelling. 2230 square ft Garage is fully built. Foundations, services, sewerage, electric and water all in place. Boundaries, fences and hedges all in place Excel...Price On Application
More Details -
Waterfall & Land, Boho Road, Coolarkin, Enniskillen, BT74 5BH
- Commercial Land
Circa 9 acres of land with a stunning scenic waterfall on site with wonderful panoramic countryside views. Derelict dwelling with only partial walls beside the waterfall. (see photo 7) Situated 8.5 miles from Enniskillen and just 5 miles to Mon...Price On Application
More Details -
Erne Road Enniskillen, BT74 6DP
- Commercial Land
FOR SALE - C.2.7 acres of land in a prime location only minutes from Enniskillen Town Centre. For more information please contact McGovern Estate Agents on 028 6632 8282 Notice Please note we have not tested any apparatus, fixtures, fittings, ...Price On Application
More Details -
Land At, Coleshill Enniskillen, BT74 5HH
- Commercial Land
Agricultural Land at Coleshill Favourable and heavy land in a prime location just on the outskirts of Ennsikillen Town Centre. Access via Coleshill road For more information please contact our office. what3words /// irony.starch.youngest ...Price On Application
More Details