Share with a friend

Please check you have entered all details correctly:

Options

Ballyconnell Road, Carickaleese, Derrylin, Enniskillen, BT92 9DN

£25,000

Key Information

Address Ballyconnell Road, Carickaleese, Derrylin, Enniskillen, BT92 9DN
Price Last listed at £25,000
Land type Building Plot
Status Sale Agreed

Additional Information


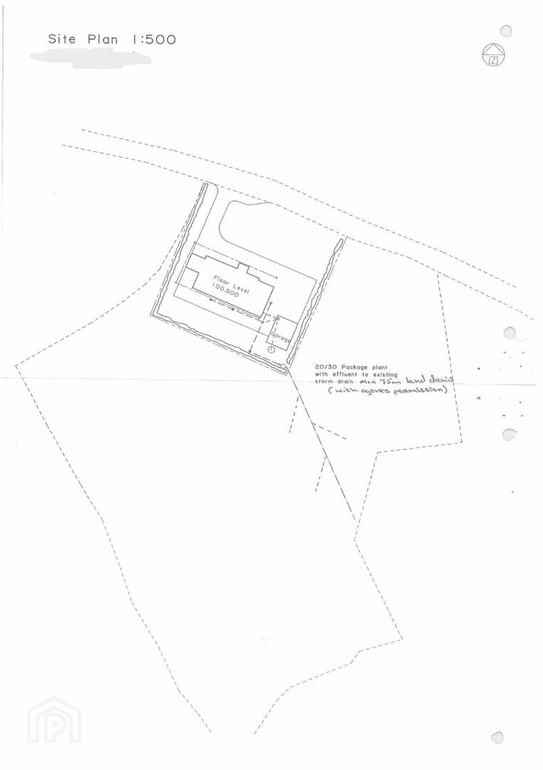
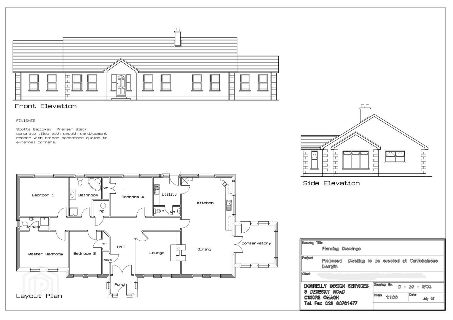
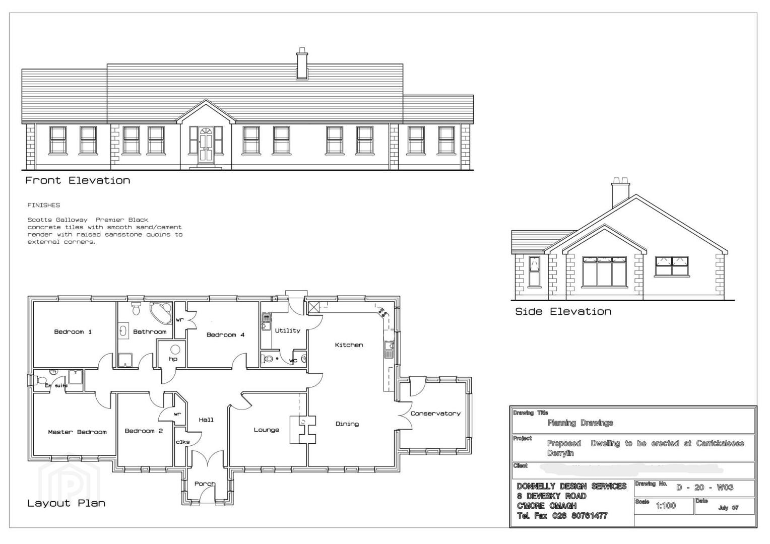
Building Site for Sale Main Derrylin/Ballyconnell Road



McGovern Estate Agents are delighted to offer this building site with full planning permission, located just off the Main Derrylin/Ballyconnell Road.

The site, circa ½ acre in size, is flat and accessible via a concrete lane with a right of way. The dwelling is up to sub-floor level for a four-bedroom detached home with a garage. Foundations are in place and signed off, with water on-site and other services nearby.



For more details, contact McGovern Estate Agents!



Notice
Please note we have not tested any apparatus, fixtures, fittings, or services. Interested parties must undertake their own investigation into the working order of these items. All measurements are approximate and photographs provided for guidance only.